売買物件06030(秋田市下浜八田字鳥屋沢)
田園風景の広がる自然豊かな立地の9DK・2階建住宅です。
売買物件登録情報 登録番号:06-030(秋田市下浜八田字鳥屋沢)
- 所在地
- 秋田市下浜八田字鳥屋沢
- 用途/取引形態
- 住宅/売買
- 希望価格
-
3,800,000円
- 都市計画区域
-
都市計画区域外
- 各計画区域
-
その他
- 敷地面積
-
1062.80平方メートル(321.49坪)
- 建物(延床)面積
-
1階:224.41平方メートル(67.88坪)
2階:41.40平方メートル(12.52坪)
合計:265.81平方メートル(80.40坪)
- 構造
- 木造
- 建築年月
- 昭和55年11月
- 補修の要否
- 多少の補修が必要
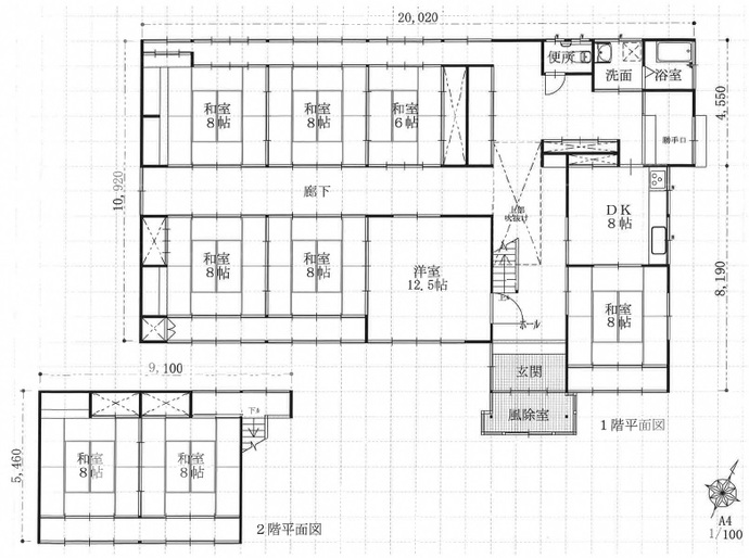
- 間取り
-
9DK
1階(DK8 洋12.5 和6 和8 和8 和8 和8 和8)
2階(和8 和8)
- 設備状況
-
電気:引込済
風呂:電気水道:上水道
キッチン:LPガス
下水道:浄化槽
トイレ:水洗/洋式
駐車場:有(2台)
車庫:無
庭:有
物置:有
家庭菜園:有
雪捨て場:有
- 主要施設までの距離
-
駅:四ツ小屋 約11.8キロメートル
バス停:八田公民館前 約0.2キロメートル市役所:雄和市民サービスセンター 約7.1キロメートル
病院:秋田赤十字病院 約13.9キロメートル
消防署:秋田南消防署 約10.8キロメートル
警察署:秋田東警察署雄和駐在所 約7.0キロメートル
保育園:はねかわ保育所 約7.1キロメートル
小学校:豊岩小学校 約7.3キロメートル
中学校:秋田西中学校 約11.7キロメートル買い物:マルダイおのば店 約9.6キロメートル
- その他特記事項
-
- 耐震診断未実施、建物状況調査未実施
- 敷地全体が土砂災害警戒区域、うち敷地の一部(物置含む)が土砂災害特別警戒区域内の指定あり。
- 登録年月日
-
令和6年12月9日
- 取扱い宅建業者
-
有限会社 アスポート
〒010-0943 秋田市川尻御休町9番39号
電話:018-895-7776


![]()
![]()
![]()
![]()
![]()
![]()
よりよいウェブサイトにするために、ページのご感想をお聞かせください。
このページに関するお問い合わせ
秋田市都市整備部 住宅政策課
〒010-8560 秋田市山王一丁目1番1号 本庁舎4階
電話:018-888-5770 ファクス:018-888-5771
お問い合わせは専用フォームをご利用ください。
