秋田市大町4-2-8-2 (1階)の登録情報
空き店舗情報
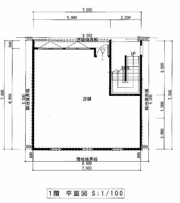
- 所在地
- 秋田市大町四丁目2番8-2号
- 店舗面積
-
46.50平方メートル(14.06坪)
- 建物構造
- 木造合金メッキ鋼板ぶき
- 建築年
- 平成30年11月
- 階数
- 2階建の1階
- 賃料
-
169,400円
- 管理費・共益費
- 無し
- 敷金・礼金
-
敷金:相談
礼金: 無し
- 保証金等
- 無し
- 仲介手数料
-
無し
- 閉店年月日
- 未入居物件
- 駐車場の有無
- 無し
- 設備
- スケルトンになっています
- その他条件
-
・火災保険加入要(事業内容により保険料は異なります。)
・家賃保証加入要(初回:賃料等の80%、更新保証料:賃料等の30%/2年)
・定期借家(再契約料:27,500円)
空き店舗所有者 管理者情報
- 会社名
- 株式会社財産コンサルティング
- 電話番号
- 018-824-0234
- 住所
- 秋田市保戸野原の町8-27
- ファクス
- 018-824-0230
- Eメール
- chintai@zaisan-consulting.co.jp
店舗地図
よりよいウェブサイトにするために、ページのご感想をお聞かせください。
このページに関するお問い合わせ
秋田市産業振興部 商工貿易振興課
〒010-8560 秋田市山王一丁目1番1号 本庁舎3階
電話:018-888-5726 ファクス:018-888-5727
商工振興担当 電話:018-888-5728
創業支援担当 電話:018-888-5729
貿易振興担当 電話:018-888-5730
