秋田市中通3-1-9 ECHOES TOWER AKITAの登録情報
空き店舗情報
- 所在地
- 秋田市中通3-1-9 ECHOES TOWER AKITA
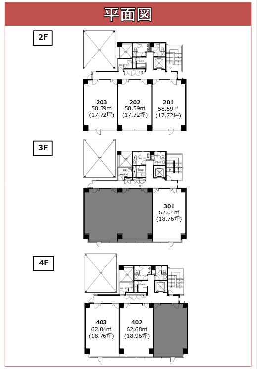
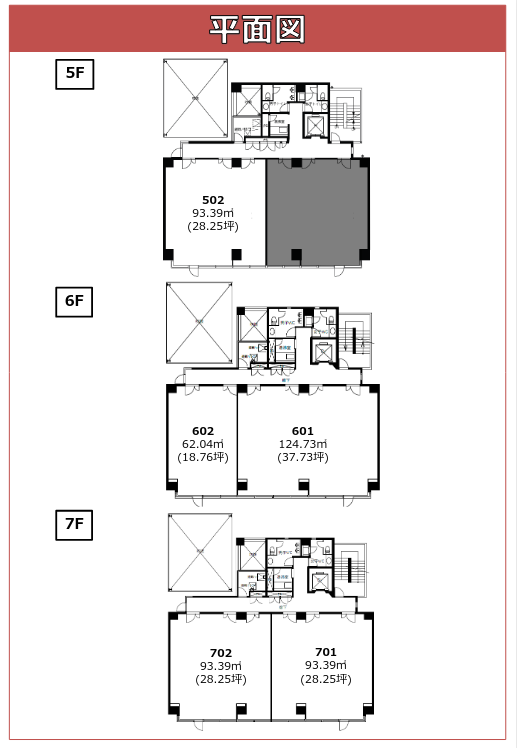
- 店舗面積
-
201、202、203 17.72坪
301、403、602 18.76坪
402 18.96坪
502、701、702 28.25坪
601 37.73坪
- 建物構造
- 鉄骨鉄筋コンクリート造陸屋根9階建
- 建築年
- 平成3年10月
- 階数
- 9階建の2〜7階
- 賃料
-
201、202、203 141,760円
301、403、602 150,080円
402 151,680円
502、701、702 226,000円
601 301,840円
(各税別)
- 管理費・共益費
- なし
- 敷金・礼金
-
敷金:賃料3か月分
礼金:なし
- 保証金など
- なし
- 仲介手数料
- 賃料1か月分
- 駐車場の有無
-
有(平置駐車場)
15,000円(税別)
- 設備
- 電気、上水道、下水道、トイレ設備、電話、エアコン、給湯、インターネット対応(MDFまでNTT光回線引き込み済)、機械警備、喫煙室、共用ラウンジ
- その他条件
-
解約予告:3か月前
その他月額費用:電気料(実費)/水道料(面積按分)
契約時費用:鍵交換代別途見積/館銘板作成費35,000円税別/火災保険料(別途見積)注:加入必須(自己加入可)
空き店舗所有者 管理者情報
- 会社名
- 株式会社リオ・ソリューション仙台支社
- 住所
-
仙台市青葉区二日町13-18 ステーションプラザビル3F
- 電話番号
-
022-722-9831
- ファクス
-
022-722-9802
- Eメール
- riosolutionsendai@rio-corp.co.jp
店舗地図
よりよいウェブサイトにするために、ページのご感想をお聞かせください。
このページに関するお問い合わせ
秋田市産業振興部 商工貿易振興課
〒010-8560 秋田市山王一丁目1番1号 本庁舎3階
電話:018-888-5726 ファクス:018-888-5727
商工振興担当 電話:018-888-5728
創業支援担当 電話:018-888-5729
貿易振興担当 電話:018-888-5730
